1.结构特点
(1)SH型塔式梗丝膨化装置主要由落料器、进料振动输送机、喷料装置(包括蒸汽喷嘴、温图利管、热风混合装置等)、膨化塔、切向分离器、旋风除尘器、风道系统、热交换装置、供水箱、供水及蒸汽管路系统等部分组成。
(2)梗丝膨化的自动控制由两个层次构成。模拟量的控制由MICON微处理器完成,主要控制温度、湿度、流量等。开关量的控制则由SIMATIC可编程控制器来完成,用以完成阀门、电机等简单的开关。MICON与SIMATIC之间有信号联系。
2.主要技术参数
SH型塔式梗丝膨化装置主要技术参数见表9-2-30所示。

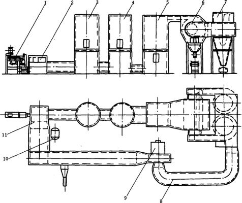
图9-2-30 SH型塔式梗丝膨化装置平面布置图
1-振动输送机 2-加热器 3-第-膨胀塔 4-第二膨胀塔 5-第三膨胀塔 6-切向分离器 7-旋风除尘器 8-热风管道 9-风机 10-水箱 11-混合箱
3.外形尺寸及安装图示
SH型塔式梗丝膨化装置的设备外形及安装图示见图9-2-30所示。
4.生产厂家
见表9-2-30。
表9-2-30SH型塔式梗丝膨化

注:顺流、逆流式是指观察者俯视整机时,热风流向为顺时针方向或逆时针方向,对技术参数无任何影响。
装置主要技术参数
