网站首页  词典首页

请输入您要查询的字词:

 

字词 ZJ15(原YJ15/YJ24)及SUPER9/PA9卷接机组
类别 中英文字词句释义及详细解析
释义

ZJ15(原YJ15/YJ24)及SUPER9/PA9卷接机组


ZJ15卷接机组是技术转让产品,与S-UPER9/PA9卷接机组的结构相同。是在MK9-5/PA8-5机组的基础上改进而成。属国内先进水平的机型。

1.ZJ15卷接机组的结构特点

(1)YJ15卷烟机的结构特点:

外形见图9-3-7所示。

图9-3-7 YJ15卷烟机外形示意图

1-卸料器 2-料斗 3-钩齿鼓 4-弹丝辘和风扇辘 5-料斗前料槽 6-盘纸更换单元 7-盘纸接头检测器 8-印刷机构 9-盘纸架 10-烟枪 11-带鼓 12-烟条喂进 13-扫描单元 14-双加速轮 15-切刀 16-烟条烙铁 17-控制板 18-胶箱 19-涂胶装置 20-M.WC或MAID-N单元 21-平准器 22-吸风室 23-浆糊罐 24-主电机 25-大风机 26-料斗变速控制 27-小风机 28-振槽 29-提升机 30-清洁辊

①风室分为左右风室,风压分别控制。左风室下部装有吸风罩,减少了堵塞现象,烟丝传送稳定,易于控制烟支质量。

②烟枪较深、较窄,有利于提高烟支外观质量。

③装有恒温自动控制双体加热器,低速运行时一台加热器工作,全速运行时两台同时工作。

④单刀切割双倍长度的烟支,刀头速度降低一半。

⑤传动装置采用电子变频无级调速,使机器加速平稳。

(2)YJ24接装机结构特点:

YJ24接装机由卷烟机主轴驱动,其外形见图9-3-8所示。

图9-3-8 YJ24接装机外形图

1-盘纸架 2-续接臂 3-盘纸指示器 4-张紧装置 5-供纸辊 6-预热器 7-涂胶器 8-真空表 9-涂胶间隙调节器 10-控制显示盘 11-接装纸脱离臂 12-托轨加热器 13-Aphis控制盘 14-真空表 15-接装纸鼓轮 16-接装纸切刀 17-对正鼓轮 18-传送鼓轮 19-分离鼓轮 20-料斗鼓轮 21-滤棒盘 22-滤棒料斗 23-滤棒切刀 24-驱动电机(滤棒和烟支分切用) 25-烟支分切装置 26-接收鼓抽风机 27-接收鼓抽风机 28-驱动轴(来自YJ15) 29-接收鼓轮 30-双倍长烟支分切鼓 31-第一分离鼓轮 32-第二分离鼓轮 33-接装鼓轮 34-靠拢鼓轮 35-搓板 36-取出鼓轮 37-干燥鼓轮 38-切割鼓轮 39-切刀装置 40-对转鼓轮 41-调头盘 42-小传送鼓轮 43-选择鼓轮 44-检测鼓轮 45-样品收集盘 46-取样和剔除鼓轮 47-控制盘 48-传送鼓轮 49-续接吸气块 50-手轮 51-盘纸转换控制

①双倍长度的烟支进入分烟鼓轮定位;在烟支分切鼓上,旋转切刀将双倍长度的烟支分切为两等长的烟支,由分离鼓轮按预定位置分开。

②接装纸上胶器具有循环供胶功能,可不断地将胶液从胶箱泵至胶辊,机器暂时停止运转时,胶辊上能保持足够的胶液。

③搓板装在一滑板上,既便于准确定位,又易于装拆和清理。所有鼓轮均采用了新型结构,装拆、调整、清理、维修均较方便。

④接装纸供给部分设有三个加热器,适当地调整加热器的温度,可适应多种胶粘剂。

2.ZJ15卷接机组主要技术参数

(1)YJ15卷烟机主要技术参数:

①生产能力:6500支/min。

②烟支规格:烟支长度50~70mm。

烟支直径6.7~8.6mm。

③装机容量 20kW。

④压缩空气需要量:

正常0.16m3/min 压力0.4MPa。

最大0.24m3/min 压力0.4MPa。

集中除尘35.3m3/min 压力1.42kPa。

附加的集中排梗2.4m3/min 压力0.37kPa。

⑤噪音级别:<85dB(A)。

⑥机器质量:5070kg。

(2)YJ24接装机主要技术参数:

①生产能力:6500支/min(最大)。

②产品范围:滤嘴烟支长度65~100mm。

烟支段长度 45~90mm。

滤棒长度 80~150mm。

滤嘴长度 10~37.5mm。

滤嘴直径 6.2~9.0mm。

接装纸片长度13~45mm。

接装纸片宽度26~90mm。

③装机功率:约19.3kW。

④压缩空气:在线压力为0.4MPa。

启动/停止最大1.32m3/min。

运行 1.01m3/min。

⑤排气:接收鼓轮排风量10m3/min(空气)。

除尘排风量 2.5m3/min(空气)。

⑥质量:4030kg。

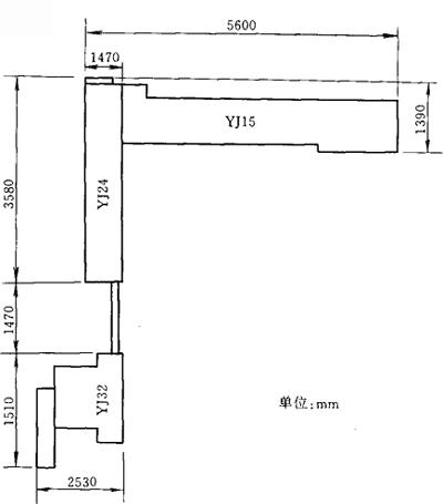
3.安装图示

见图9-3-9所示。

图9-3-9 ZJ15卷接机组安装图

4.生产厂家

英国莫林斯公司、许昌烟草工业机械厂。

随便看

 

文网收录3541549条中英文词条,其功能与新华字典、现代汉语词典、牛津高阶英汉词典等各类中英文词典类似,基本涵盖了全部常用中英文字词句的读音、释义及用法,是语言学习和写作的有利工具。

 

Copyright © 2004-2024 Ctoth.com All Rights Reserved
京ICP备2021023879号 更新时间:2025/10/17 16:36:50