网站首页  词典首页

请输入您要查询的字词:

 

字词 压力洗浆机
类别 中英文字词句释义及详细解析
释义

压力洗浆机


1.原理

压力洗浆机是较新的洗浆设备。

压力洗浆机是利用洗鼓外的气压对洗鼓网面上浆层进行压力过滤洗浆。鼓外气压由高压鼓风机生成,有时也可辅以蒸汽。

压力洗浆机利用提高过滤效能。不需要真空系统,可安装在较低的楼面(4~5m)。

洗鼓全周分成过滤区、置换洗涤区和剥浆区。

压力洗浆机要保持洗鼓气压必须防止漏气,密封罩壳与转鼓之间,剥浆区压辊与转鼓之间都要密封。

2.主要结构与特点

①主要结构有洗鼓、滤液收集、鼓端密封,剥浆与出浆装置等组成。

②主要特点——压力洗浆机密封性好,对进浆量与进浆浓度适应性较大,不易掉网、堆浆。

密封压力洗浆可采用较高洗浆温度80~85℃,可减少散热,提高黑液温度。

压力洗浆可采用单台一段或单台两段洗涤,如用三台六段可作各种浆料的黑液提取及洗涤。

压力洗浆各段浆料依靠轴流泵输送,浆料稀释混合均匀,流送状态好,操作方便,可实现自动化仪表控制。

压力洗涤是正压过滤,不易产生滤液汽化和泡沫,酸法浆也不会逸出SO2污染大气,SO2可回收。钙盐浆的钙结垢清洗方便。

压力洗浆机的压力差受洗鼓直径和鼓风机性能限制,在鼓径Φ2.5~4m,鼓外气压只能到7.85~11.77kPa水柱。对脱水难的草类浆料,新式压力洗可在鼓内抽真空,增加洗涤过滤效能。

压力洗可选用先洗后筛的流程,提高提取率。

图6-4-25 压力洗浆机

1-转鼓密封 2-转鼓传动 3-鼓槽 4-喷洗装置 5-载鼓 6-二段排液装置 7-密封辊装置 8-散浆器

压力洗浆机所需动力多,电耗大。

3.压力洗浆机的技术特征

压力洗浆系统应选用多台串联,除主机外,还需配备高压鼓风机、轴流浆泵和滤液槽及自控仪器仪表。

表6-4-29 压力洗浆机主要技术特征

表6-4-30 配套的高压鼓风机的技术特征

表6-4-31 配套的轴流浆泵的技术特征

4.压力洗浆机洗涤工艺流程

压力洗浆机在生产流程中可分为单台一段或单台两段洗涤。一般采用多段逆流洗涤流程提取浆料黑液。如图6-4-26。其洗浆参数对浆料质量有影响,设备特性根据浆料的特定条件而变化。

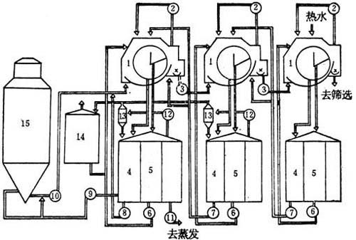
图6-4-26 压力洗浆机多台串联逆流洗涤流程

1-洗浆机 2-高压风机 3-浆泵 4-1.3.5级大废液槽 5-2.4.6级小废液槽 6、7、8、9-废液泵 10-喷放锅抽液泵 11-废液泵 12-泡沫风机 13-泡沫分离 14-泡沫槽 15-喷放锅

5.操作及注意事项

①开机时,控制纸浆浓度由小到大,以防堆浆或堵塞,并保持上浆量稳定。

②提高洗涤水的温度,有利于扩散,降低泡沫的稳定性。一般要求水温在85~90℃之间,但温度超过90℃时,洗浆机内产生大量蒸汽,对过滤不利。

③各段洗浆喷液管的喷放量应均匀,注意喷淋黑液不要破坏浆层。

④风压大,洗浆效果好,风压提高0.1m水柱,洗净度可提高3%左右,但要保持洗浆机内风压稳定。

⑤压力洗浆机转鼓内滤液面与液槽位差仅有2~2.5m,所以,废液槽可制成矮胖形,容量以贮存8min废液即可。

⑥压力洗浆机是多效的,可在大废液槽中套小废液槽,进行双效洗涤时,大槽贮第一效的过滤区废液,小槽贮第二效置换洗涤区的残废液。

6.压力洗浆机用于草浆洗涤的认识

①压力洗浆机洗涤碱法草浆不尽适宜,黑液提取率不高。

②压力洗浆机洗涤草浆压差小,出浆浓度偏低,浆层不如真空洗浆机那样能保持多孔性。

③压力洗浆机价格高于真空洗浆机2倍多,投资较高。

7.新型的HP型压力洗浆机

HP型压力洗浆机和国产压力洗浆机相比,外形基本相同。主要区别是HP型压力洗浆机除了用压力气流使浆料脱液之外,尚利用水腿产生真空脱液,所以,HP型压力洗浆机既利用压力气流脱液,又借助真空脱液,是一种特殊结构的压力洗浆机。其工作原理见图6-4-27。

图6-4-27 HP型压力洗浆机的工作原理

1-风机 2-剥浆用的压力气流 3-返回风机的气流 4-洗涤液管 5-密封滑块 6-稀释水管 7-碎浆螺旋 8-滤液小室 9-洗鼓滤网 10-进浆口 11、12-滤液排出管 13-出浆管 14-风机气流施加于浆层的压力 15-水腿产生的真空 16-液位差形成的静压

HP型压力洗浆机主要用于大型硫酸盐浆厂,装在依斯科(ESCO)连续蒸煮器之后洗涤浆料。也可用于脱水困难的麦草浆。根据国外资料介绍,洗涤能力可达2.5t/(m2·24h)。

随便看

 

文网收录3541549条中英文词条,其功能与新华字典、现代汉语词典、牛津高阶英汉词典等各类中英文词典类似,基本涵盖了全部常用中英文字词句的读音、释义及用法,是语言学习和写作的有利工具。

 

Copyright © 2004-2024 Ctoth.com All Rights Reserved
京ICP备2021023879号 更新时间:2026/4/23 11:47:25