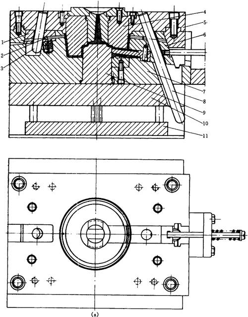
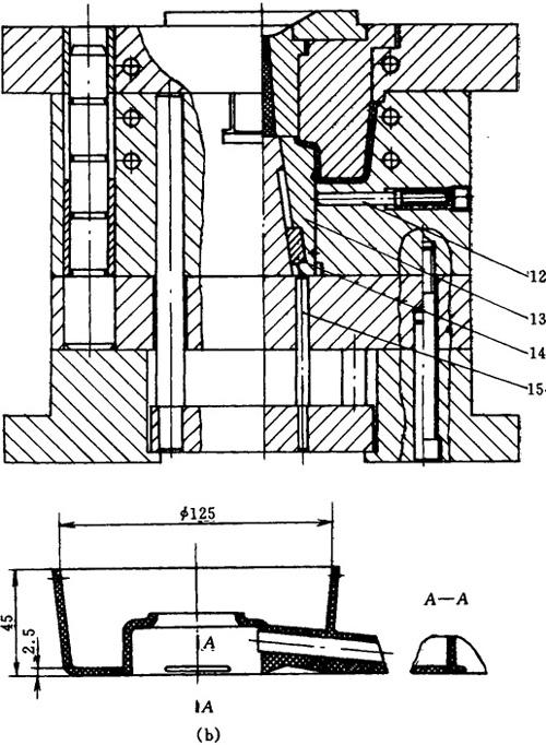
制品的侧面深孔和小孔由滑块上的型芯成型,中间内腔的两处内侧凸筋由斜滑块13成型。此模具为斜向侧抽芯的注塑模具。
开模时,制品被带往动模—侧,同时斜销3和8分别带动滑块1和6完成对两侧斜向型芯的抽芯。顶出过程中,推杆15推动由导滑块14导滑的斜滑块13沿型芯9的斜面移动,从而完成制品内侧凸筋处的抽芯,同时顶出制品,见图5-16。

图5-16(a) 塑料气压瓶盖注射模具主视图及俯视图

图5-16(b) 塑料气压瓶盖注射模具侧视图及塑件图
1—滑块 2—型芯 3—斜销 4—型芯 5—定模板 6—滑块 7—动模板 8—斜销 9—型芯 10—支承板 11—推板 12—定位销 13—斜滑块 14—导滑块 15—推杆