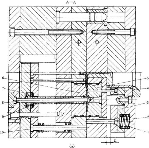
制品为一左旋斜齿轮,其螺旋角为7°,与之相连的φ47凸缘,其连接处的宽度只有4mm,而且凸缘的最薄处也只有2mm,制品在此处极易产生变形和损坏。为便于斜齿轮的顶出,将齿轮主体部分和凸缘分别在动模板和定模板成型,同时为防止在开模时损坏制品的凸缘和使塑件留于动模,设置了定模顶出机构。此模具为典型的螺旋顶出结构的注塑模具。
开模时,在弹簧1的作用下,推杆4顶动制品的凸缘处,使其脱离定模镶件5而留于动模一侧。顶出时,因为推管9的尾部装有推力轴承7,所以推管9沿齿轮的螺旋方向做螺旋顶出,将制品从动模镶件6中顶出。
合模时,推杆4和推管9分别借助复位杆2和复位杆10复位,见图5-1。

图5-1(a) 塑料螺旋齿轮注塑模具主视图

图5-1(b) 塑料螺旋齿轮注塑模具俯视图及塑件图
1—弹簧 2—复位杆 3—推板 4—推杆 5—定模镶件 6—动模镶件 7—推力轴承 8—型芯 9—推管 10—复位杆