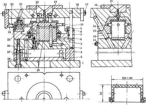
(1)结构特点 动模为哈夫式并带侧抽芯,见图5-27。

图5-27 尼龙66座
1—动模板 2—顶板 3—支板 4—动模型板 5—型芯 6—螺纹成型芯 7—推板 8—压板 9—螺钉 10—导柱 11—水嘴 12—斜导柱 13—哈夫 14—镶件 15—注口套 16—定位盘 17—螺钉 18—定模板 19—镶件 20—侧芯 21—斜导柱 22—弹簧 23—挡块 24—开口销 25—支座 26—螺钉 27—顶杆 28—螺钉 29—密封环
(2)动作原理 开模时,动模部分与定模18首先分离,在分离的同时,定模上的斜导柱21将侧芯20抽出。然后,顶出系统的顶杆27顶动推板7,推板7在向上移动时,使哈夫13顺沿斜导柱12向两侧分开,与此同时,塑件即与型芯5脱离,最后,再用专用工具将螺纹成型芯6拧下来。
(3)浇口尺寸 浇口由圆形过渡到扁形,其尺寸是宽7.5mm,厚1mm。
(4)工艺要点 直导柱孔、斜导柱孔、顶出孔都要和相邻有关件同时钻铰,以保证同心度。斜导柱21固定孔应和侧芯20、支座25相配孔同时钻铰。哈夫13和推板7在装配后,必须保证滑动无阻,尤其是在向上顶出时,更不能有卡滞现象。