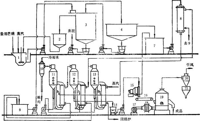
海盐区广泛以盐田自然冷冻法产出的芒硝(粗硝)为原料,采用全溶蒸发法制取无水硫酸钠。该工艺主要有溶硝、保温沉降、蒸发结晶、离心脱水和干燥等5个工序,其工艺设备流程见图6-4-6和图6-4-7。

图6-4-6 全溶蒸发法制无水硝工艺流程图

图6-4-7 全溶蒸发法制取无水硝工艺设备流程图
1-溶硝槽 2-洗泥水贮槽 3-三层洗泥桶 4-沉降器 5-硝泥槽 6-硝泥搅拌槽 7-清硝液贮槽 8-预热器 9-涮罐水贮槽 10-冷凝器 11-Ⅲ效蒸发罐 12-Ⅱ效蒸发罐 13-1效蒸发罐 14-硝浆搅拌槽 15-离心机 16-皮带机 17-鼓风机 18-暖风流 19-沸腾干燥器 20-旋风除尘器 21-回收料斗