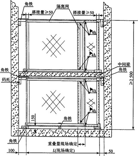
国家标准规定,在井道下部,在不同电梯的运动部件(轿厢与轿厢、轿厢与对重)之间,应设置隔离装置。这种隔离装置应至少从运动部件行程的最低点延伸到底坑地面以上2.5m的高度。
对于贯通井道,应该如图10.3-1所示,根据底坑实际尺寸确定L尺寸,将隔离装置焊接(或用膨胀螺栓)安装在井道之间的隔离梁上。

图10.3-1 地坑隔离网安装示意
对重防护网如图10.3-2所示,直接使用导轨压板安装在对重导轨上。安装好护网后,应检修运行电梯上、下运行,检查补偿链是否刮碰对重护栏。

图10.3-2 对重护网安装示意
有时候,无论如何调整,平衡链都会刮到对重护栏发出响声,那么可以在护栏最下端绑上橡胶皮以减少磨损和噪音。