建筑装饰琉璃制品的技术质量要求,主要包括规格尺寸、外观质量和物理力学性质三个方面:
(一)建筑装饰琉璃制品的尺寸
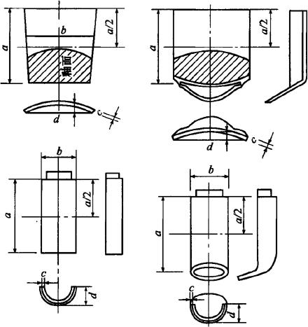
由于建筑装饰琉璃制品的种类很多,形状各种各样,所以其尺寸也很不固定,可根据建筑装饰工程的具体需要,由供需双方协商确定。但尺寸允许偏差必须符合国家有关规定。常用的琉璃瓦尺寸如图16-7所示。

图16-7 琉璃瓦的尺寸示意图
(二)建筑装饰琉璃制品的外观质量
琉璃制品按外观质量分为优等品、一级品和合格品。外观质量必须符合表16-27~表16-29的规定。同一件产品允许外观缺陷项目,优等品不超过3项,一级品不超过5项。
表16-27 琉璃瓦类的外观质量

注:表中的“不计”指缺陷对使用效果无影响。
表16-28 琉璃制品脊类和饰件(吻)类外观质量

注:表中的“不计”指缺陷对使用效果无影响。
表16-29 琉璃制品饰件(兽)类外观质量

注:表中“c”指饰件(兽)类的外形高度。
(三)建筑装饰琉璃制品的物理力学性质
建筑装饰琉璃制品的物理力学性质,如表16-30所示。
表16-30 建筑装饰琉璃制品的物理力学性质
