网站首页  词典首页

请输入您要查询的字词:

 

字词 标准的分级
类别 中英文字词句释义及详细解析
释义

标准的分级


1.国家标准

国家标准是指国家行政标准化主管机构批准、发布,在全国范围内统一的标准。

国家标准主要包括:

(1)基本原料、材料标准;

(2)面广量大、跨部门生产的重要工农业产品标准;

(3)有关人民健康、安全和环境保护的标准;

(4)有关互换、配合、通用技术等方面的标准;

(5)通用的零件、部件、元件,器件、构件、配件和工具、量具的标准;

(6)通用的试验和检验方法标准;

(7)质量管理等方面的标准。

国家标准编号由国标代号、发布顺序号——标准制(修)订年号(只用后两位数)组成。国家标准代号及含义见表1.3.1-1。

表1.3.1-1 国家标准现行代号及含义

2.专业标准(部标准)

专业标准是指由专业标准化主管机构或标准化组织(国务院各主管部门)批准、发布,在某专业(部门)范围内统一的标准。

一般地讲,凡是不宜制订为国家标准而又必须在某个专业内统一的标准,都应该制订其专业标准;另外有些标准化对象一时难以制订国家标准时,可先制订专业标准。

专业标准之间必须相互协调、配合,不能相互矛盾。同一标准化对象应只能订一个专业标准,不得重复。专业(部)标准不得与国家标准相抵触。

目前,专业标准与部标准并列为同一级别是暂时的,专业标准将逐步取代部标准。尽管部标准在标准化历史上曾起过积极作用,但实践证明,它存在许多缺陷。国家已提出要求,1990年前,各部门应将部标准(提升为国际除外)全部过渡为专业标准。

专业标准编号由号标(ZB)代号、一级类目(专业大类)、二级类目(小类)、标准发布顺序号-标准制(修)订年号(只用最后两位数)组成。例:

我国专业标准编号按《中国标准文献分类法》进行,见表1.3.1-2。

表1.3.1-2 中国标准文献分类法

现行部标准编号由部标准代号、发布顺序号-标准制(修)订年号(只用最后两位数)组成。

现行部指导性技术文件,属于推荐性标准,其编号由部标准代号/Z、发布顺序号一标准制(修)订年号(只用最后两位数)组成。

3.地方标准与企业标准

国家建立以国家标准、专业标准为主体,地方标准、企业标准为补充的标准体制,地方标准与企业标准不得与国家标准、专业标准相抵触。

地方标准的对象:

(1)具有地方特点的标准;

(2)在没有国家标准、专业(部)标准的情况下,制订技术水平更高、更具体的标准;

(3)在没有国家标准、专业(部)标准的情况下,制订不影响全国统一配套的标准;

(4)加强地方经济管理的标准。

表1.3.1-3 部标代号

地方标准只限于省、自治区、直辖市和省辖市(地)两级。地方标准由地方人民政府标准化行政部门组织制订、审批,或其授权的地方人民政府有关主管部门审批,由地方人民政府行政部门发布。

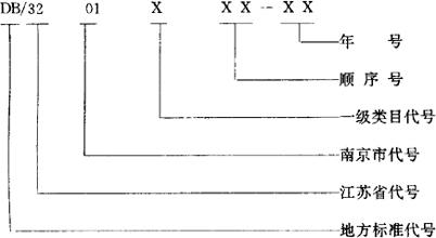
地方标准编号由地方标准代号(DB)/各省(市)地方编号、发布顺序号-制(修)订年号组成。

例:江苏省南京市地方标准编号为

注:地方编号可按GB2260-86《中华人民共和国行政区划代码》。

企业标准是由企(事)业或某上级有关机关批准发布的标准。

我国现行企业标准包括公司、总厂、工厂标准,部局审批发布的企业标准,也包括各省、市、自治区的地方性企业标准。作为产品的企业标准必须由其上级主管部门审批给号。作为正式成批生产的产品,必须具有已审批发布的企业标准(如果没有国家标准、专业标准)。地方企业标准将逐步为地方标准代换。

表1.3.1-4 地方上的企业标准代号

原机械部有关专业局批企业标准代号见表1.5.1-5。

表1.5.1-5 专业代号

标准种类

按标准化对象可分为:

(1)基础标准:在一定范围内作为其他标准的基础并普遍使用,具有广泛指导意义的标准。

(2)产品标准:为保证产品的适用性,对产品必须达到的某些或全部要求所制订的标准,其范围包括:产品分类(品种规格)、技术要求、试验方法、检验规则、标志、包装、运输、贮存等。

(3)工程建设标准:对基本建设中各类工程的勘察、规划、设计、施工、安装、验收等需要协调统一的事项所制订的标准。

(4)方法标准:以试验、检查、分析、抽样、统计、计算、测定、作业等各种方法为对象制订的标准。

(5)安全标准:以保护人和物的安全为目的制订的标准。

(6)卫生标准:为保护人的健康,对食品、医药及其他方面的卫生要求制订的标准。

(7)环境保护标准:为保护环境和有利于生态平衡,对大气、水、土壤、噪声、振动等环境质量、污染源、检测方法以及其他事项制订标准。

(8)术语标准:对专用术语制订的标准。术语标准中一般规定术语、定义(或解释性说明)和对应的外文名称。

(9)包装标准:为保障物品在贮藏、运输和销售中的安全和科学管理的需要,以包装的有关事项为对象所制订的标准。

(10)服务标准:对某项服务工作要达到的要求所制订的标准。(注:服务标准一般在交通运输、饭店、广播、邮电、银行、商业、旅游等服务领域中制订)

(11)技术标准:对标准化领域中需要协调统一的技术事项所制订的标准。

(12)管理标准:对标准化领域中需要协调统一的管理事项所制订的标准。

(13)工作标准:对重复出现的管理业务、现场作业及其考核工作达到的要求所制订的标准。

随便看

 

文网收录3541549条中英文词条,其功能与新华字典、现代汉语词典、牛津高阶英汉词典等各类中英文词典类似,基本涵盖了全部常用中英文字词句的读音、释义及用法,是语言学习和写作的有利工具。

 

Copyright © 2004-2024 Ctoth.com All Rights Reserved
京ICP备2021023879号 更新时间:2025/10/17 20:27:51