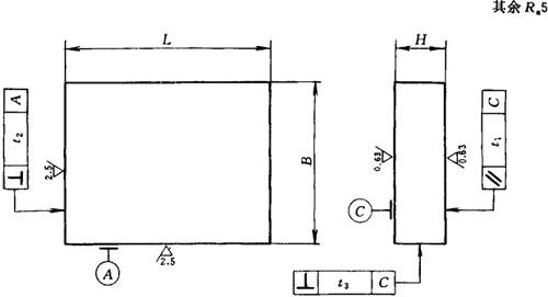
模板如图3-19和表3-14所示。

图3-19 模板
标记示例:B=100mm,L=160mm,H=40mm的模板,模板100×160×40
表3-14 模板(GB4169.8—84)(mm)

注 材料:45钢(GB699—88),当采用作固定模板、动模固定时允许用Q235钢(GB700—88)。
技术条件:①图中标注的形位公差值按GB1184—80的附录一,t1为5级,t2为6级,t3为8级。当用作定模固定板、动模固定板时,根据使用要求t2、t3的等级由承制单位自行决定;②以A为基准的直角相邻两面应作出明显标记。标记方法由承制单位自行决定;③其它按GB4170—84。