网站首页  词典首页

请输入您要查询的字词:

 

字词 电子皮带秤
类别 中英文字词句释义及详细解析
释义

电子皮带秤


1.结构特点

电子皮带秤由秤架、称重传感器、测速装置和二次仪表四部分组成。根据生产工艺要求,可参与自动控制、自动配比,对工作周期进行计量和累计,并具有自动稳定流量功能。

2.主要产品及技术参数

CJ41~CJ47、CP41~CP47及CK41~CK47型(M系列)电子皮带秤

(1)结构特点:CJ41~CJ47、CP41~CP47及CK41~CK47型电子皮带秤是郑州烟草研究院与天津核工业理化工程研究院共同开发的产品,具有高精度,高灵敏度,称重完全密封,不受灰尘影响;皮带松垂,易保证良好的运行轨迹和称重误差;多托辊承重架适合低密度物料的称重;设备维护量少。M系列皮带秤系统图见图9-11-1所示。

图9-11-1 CJ41~CJ47、CP41~CP47及CK41~CK47型(M系列)电子皮带秤系统图

CJ41~CJ47、CP41~CP47及CK41~CK47型电子皮带秤分别属于计量型、配比型与控制型设备,其主要功能包括:荧光屏显示(瞬时流量、累加量、负荷量、速度、工作状态),系统诊断,自动标定信息(程序菜单和指令,系统设计参数、历史数据)。积分控制器可显示给定值和控制参数,提供过程量和给定量的柱图。

两级安全口令保护(一级口令使操作人员观察数据,另一级口令则允许维护人员进行编程)。PID参数可在线整定,手动/自动无扰动切换,配比控制及远程控制。

系统可输出4~20mA或频率瞬时流量信号,外部累计重量脉冲信号,输入输出连锁信号。

(2)CJ41~CJ47、CP41~CP47及CK41~CK47型电子皮带秤的主要技术参数:各处类型的电子皮带秤新旧型号对照见表9-11-5。

表9-11-5 电子皮带秤新旧型号对照

称重范围:200~20.00Qkg/h。

皮带速度:0~20m/min。

调速范围:优于5∶1。

皮带宽度:400~1600mm。

精度:±0.5%。

电机功率:0.37~0.55kW。

供电电源:220VAC±10%;50Hz±1Hz。

物料密度:8~300kg/m3

使用环境:10~40℃;相对湿度≤90%。

输送机倾角:0°~20°。

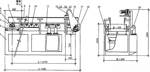
(3)CJ41~CJ47、CP41~CP47及CK41~CK47型(M系列)电子皮带秤总装图见图9-11-2所示。

图9-11-2 CJ41~CJ47、CP41~CP47及CK41~CK47型(M系列)电子皮带秤总装图

1-机架 2-松紧调节器 3-被动辊 4-光电编码器 5-连接小轴 6-联轴节 7-皮带 8-侧板组件 9-托辊支架 10-托辊 11-承重架 12-驱动装置 13-键盒 14-大链轮 15-小链轮 16-链条 17-主动辊 18-刮板组件 19-秤体 20-标准棒

(4)生产厂家:郑州烟草研究院、天津核工业理化工程研究院。

CJ11~CJ19、CP11~CP19及CK11~CK19型(QDPC系列)电子皮带秤

(1)结构特点:CJ11~CJ19、CP11~CP19及CK11~CK19型电子皮带秤分别属于计量型、配比型及控制型设备。其主要功能包括:6位数码管显示累计量,4位数码管显示瞬时流量,具有手动/自动转换功能;具有皮带自动调节、自动挂码、校零、校量功能,并配有一路或两种4~20mA瞬时流量和一路累计量(kg)脉冲输出信号、校称信号、故障信号和无料信号、输入/输出连锁信号及电机启停信号。

(2)CJ11~CJ19、CP11~CP19及CK11~CK19型电子皮带秤主要技术参数:各种类型的电子皮带秤新旧型号对照见表9-11-5。

称重范围:200~7000kg/h。

称重精度:≤0.5%。

皮带速度:0.02~0.03m/s。

调速范围:≥5∶1。

电机功率:0.75kW;1.1kW。

供电电源:380VAC±10%;50Hz±1Hz。

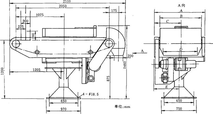
(3)CJ11~CJ19、CP11~CP19及CK11~CK19型电子皮带秤外形图见图9-11-3所示。

图9-11-3 CJ11~CJ19、CP11~CP19及CK11~CK19型电子皮带秤外形图

图中A、B、C、D、E的尺寸,见表9-11-4。

表9-11-4 QPPC系列电子秤宽度尺寸 单位:mm

(4)生产厂家:北京长征高科技公司。

CJ21~CJ27、CP114~CJ121、CP21~CP27、CP114~CP121及CK21~CK27、CK114~CK121型(YC82系列)电子皮带秤

(1)结构特点

①该型号的电子皮带秤主要特点是在皮带输送机上采用了毛刷轮,清洗罩上的灰尘,防止皮带自重的增加。重锤结构可保持恒定的张力。秤架选用刀口刀承式单辊结构。考虑到现场的恶劣环境,选用精度高全封闭悬臂梁电阻应变式传感器。结构见图9-11-4所示。

图9-11-4 CJ21~CJ27、CJ114~CJ121、CK21~CK27、CK114~CK121及CP21~CP27、CP114~CP121电子皮带秤示意图

1-喂料机 2-减速机 3-直流电机 4-测速电机 5-秤架 6-输送机 7-传感器 8-放大器 9-控制柜

②该型号电子皮带秤主要功能包括:具有测量杆调正、皮带校准、负荷重量校准、皮带额定速度校准功能;具有手动/自动转换功能;具有给定值、负载极限报警功能;具有实物标定及误差修定功能;具有控制精度测试功能;具有控制连锁功能;具有皮带跑偏调正功能。

(2)CJ21~CJ27、CJ114~CJ121、CP21~CP27、CP114~CP121及CK21~CK27、CK114~CK121电子秤主要技术参数:该类电子皮带秤的新旧型号对照见表9-11-5。

称重范围:500~6500kg/h。

皮带速度:0.073~0.361m/s。

皮带宽度:600mm;800mm;1000mm。

精度:1%。

动态累计误差:新0.5%;使用中1.0%。

输送机倾角:0°~18°。

微机电控柜尺寸:长×宽×高为700mm×380mm×600mm。

长×宽×高为800mm×455mm×1100mm。

长×宽×高为856mm×600mm×2155mm。

供电电源:380VAC±38V;220VAC±22V。

(3)该类电子皮带秤外形图:见图9-11-5所示。

图9-11-5 CJ21~CJ27、CJ114~CJ121、CP21~CP27、CP114~CP121及CK21~CK27、CK114~CK121电子皮带秤外形图

1-输送机 2-后板 3-秤台 4-机架 5-交流和直流电动机组 6-毛刷轮 7-主动轮链轮 8-电动机轴链轮 9-重锤

(4)生产厂家:昆明船舶设备集团公司。

CJ111~CJ113、CP111~CP113及CK111~CK113型(ICS系列)电子皮带秤

(1)结构特点:该秤采用微机技术,具有小流量,高精度特点,其主要功能包括:自动控制采用微机技术,自动显示和输出累加质量,瞬时流量,自动报警及检测显示故障位置。

输入输出信号有:模拟量口、RS-232口、4~20mA或1~5V口,脉冲(kg)信号,整机启停信号,流量设定和定位信号。

(2)主要技术参数:CJ111~CJ113、CP111~CP113及CK111~CK113的新旧型号对照见表9-11-5。

称重范围:3000~5000kg/h。

皮带速度:240~700cm/min。

皮带宽度:800mm;1000mm;1200mm。

精度:0.5%。

静态精度:≤0.25%。

环境温度:0~40℃。

环境湿度:5%~95%。

功耗:1kW。

(3)外形尺寸:

长×宽×高为2555mm×1125mm×1683mm。

长×宽×高为2555mm×1325mm×1683mm。

长×宽×高为2555mm×1525mm×1683mm。

(4)生产厂家:杭州4509厂。

3.电子皮带秤新型号命名

根据国家烟草专卖局烟草机械标准,电子皮带秤新型号命名含义如下:

随便看

 

文网收录3541549条中英文词条,其功能与新华字典、现代汉语词典、牛津高阶英汉词典等各类中英文词典类似,基本涵盖了全部常用中英文字词句的读音、释义及用法,是语言学习和写作的有利工具。

 

Copyright © 2004-2024 Ctoth.com All Rights Reserved
京ICP备2021023879号 更新时间:2026/4/27 17:04:55