网站首页  词典首页

请输入您要查询的字词:

 

字词 简单脱模机构
类别 中英文字词句释义及详细解析
释义

简单脱模机构


凡在动模一边施加一次顶出力,就可实现塑件脱模的机构,称为简单脱模机构。通常包括推杆脱模机构、推管脱模机构、推件板脱模机构、推块脱模机构、螺旋脱模机构、气动脱模机构和联合脱模机构等。

4.4.2.1 推杆脱模机构

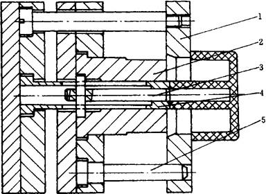
推杆脱模机构的典型结构如图4-30所示。开模后,由安装在推杆固定板2上的推杆1推顶塑件脱模,合模时由回程杆7推杆复位,导套3和导柱4能够保证脱模机构运动灵活,避免发生倾斜、卡死现象。

图4-30 推杆脱模机构的典型结构

1—推杆 2—推杆固定板 3—推板导套 4—推板导柱 5—推板 6—拉料杆 7—回程杆 8—挡销

在塑件几何形状和模具结构允许的情况下,可将推杆兼作回程杆使用。推杆兼作回程杆的设计如图4-31所示。

图4-31 推杆兼作回程杆的设计

1—推杆 2—型芯 3—回程杆

当模具的结构需要推顶塑件的薄壁处时,可采用盘头推杆,如图4-32所示。盘状推杆推出,与塑件的接触面积较大,制品不易变形。

图4-32 盘头推杆

为了使塑件在开模时留在动模上,推杆可兼作拉料杆,如图4-33所示。推杆2上有拉料钩,起拉料的作用,推杆1为斜面顶出,为防止顶出时滑动,在其端面(斜面)上加工有多个小槽,开槽方向要便于取出制品。

图4-33 推杆兼作拉料杆的设计

1、2—推杆 3—型芯 4—型套

滑块锁紧型芯,推杆顶出型芯的模具结构见图4-34。开模时,为了确保制品留在动模上,用滑块3将螺纹型芯锁紧,制品随其留在动模。然后在斜销7的作用下,抽动滑块3去掉锁紧,推杆将螺纹型芯2与制品一起顶出。

图4-34 滑块锁紧型芯,推杆顶出机构

1—型套 2—型芯 3—滑块 4—定位杆 5—弹簧 6—顶板 7—斜消 8—定模板 9—定模座板

当塑件结构特殊,需用斜推杆顶出,如图4-35所示。顶出时,在顶杆7推动下,由于滚针6的作用,顶出机构可平稳的沿着斜块9滑动,顶出制品。

图4-35 斜推杆顶出机构

1—定模板 2—定模型垫块 3—型芯 4—洗道 5—顶板 6—滚针 7—斜滑块固定螺钉 8—导柱 9—滑块 10—弹簧 11—底板

4.4.2.2 推管脱模机构

推管又称顶管,特别适用于圆环形、圆筒形等中心带孔的塑件脱模。推管整个周边推顶塑件,使塑件受力均匀,无变形;主型芯和动模可同时设计在动模一边,有利于提高塑件的同轴度。

主型芯固定于动模座板的推管脱模机构见图4-36。型芯穿过推板固定于动模座板,此种结构型芯较长,型芯可兼作脱模机构的导向柱,多用于脱模距离不大的情况。

图4-36 主型芯固定于动模座板的推管脱模机构

1—动模座板 2—型芯固定板 3—推板 4—推管固定板 5—推管 6—型芯 7—动模板 8—定模板

主型芯固定于动模型芯固定板的推管结构见图4-37。采用这种结构,型芯的长度可大为缩短,但顶出行程包含在动模板内,致使动模的厚度增加,顶出距离受限。型芯固定方法如图4-37(a)、(b)、(c)所示。

图4-37 主型芯固定于动模型芯固定板的推管脱模结构

图4-38为推管中部开有长槽,型芯用放键固定于动模支撑板,结构紧凑,推出行程不受限制,但型芯的紧固力较小。

图4-38 推管开槽的推管脱模机构

1—推板导柱 2—垫板 3—型芯固定板 4—键 5—动模板 6—型芯 7—制品 8—动模型芯套 9—定模板

图4-39为双推管顶出结构。顶出时,推管2和推管6同时推动制品,将制品顶出。制品不易变形和损坏,适用于薄壁易变形,强度差的塑料制品。

图4-39 双推管顶出结构

1、5—顶板 2、6—推管 3、7—导柱 4—套管

4.4.2.3 推件板脱模机构

推件板又称脱模板,此种脱模机构适用于大筒形塑件、薄壁容器及各种罩壳类塑件的脱模。推件板脱模的特点是顶出均匀、力量大、运动平稳、塑件不易变形、表面无顶痕、结构简单、不须设置复位装置。

常用推件板脱模的结构如图4-40所示。图4-40(a)、(b)所示推件板与推板之间采用固定连接,图4-40(b)表示将推件板镶入动模板中,此种形式称为环状推件板,图4-40(c)、(d)、(e)表示推板与推件板之间无固定连接,此时须防止推件板从导柱滑落。

图4-40 常用推件板脱模的结构

1—推板 2—推件板

当用推件板脱出无通孔的大型深腔壳体类塑件时,须在型芯上设置进气装置,以破坏型芯与塑件之间形成的真空,如图4-41所示。

图4-41 带进气装置的推板脱模结构

1—推件板 2—阀杆 3—弹簧

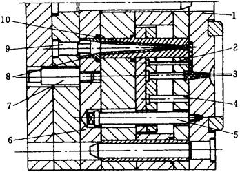
当多型腔模具采用推件板脱模时,推件板上应安装衬套,并以锥面与型芯配合如图4-42所示。开模时,由于Q定距拉杆5的作用,带动推杆2及推料杆3将浇口脱落,随后机床顶杆直接推动推杆7及推件板6,将制品从型芯9上顶出。

图4-42 推件板带衬套的结构

1—定模板 2—流道推杆 3—推料杆 4—复位杆 5—定距螺钉拉杆 6—推件板 7—推杆 8—衬套 9—型芯 10—凹模

当塑件和模具的结构不允许塑件留于动模时,可在定模设置推板机构,推出塑件,如图4-43所示。开模时,由于弹簧3的作用,使动模板2与推件板4先分型,限位螺钉5与推件板4接触后,使定模板7与推件板4分型,推件板4将塑件从型芯6上脱出。

图4-43 定模推板推出结构

1—垫板 2—动模板 3—弹簧 4—推件板 5—限位螺钉 6—型芯 7—定模板

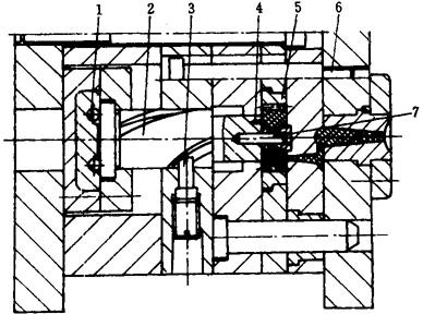
当塑件存在弧型型芯时,可采用转动式推板顶出,如图4-44所示。开模时首先脱开点浇口,然后由推杆11推动推件板10,由于推件板10可绕轴4转动,因此可以顺利的将制品顶出,推件板10回转半径R等于制品的回转半径。

图4-44 转动式推板顶出结构

1—螺塞 2—型芯 3—限位螺钉 4—轴 5—定模 6—支座 7—型芯固定板 8—圆柱销 9—型芯 10—推件板 11—球面推杆

4.4.2.4 推块脱模机构

平板状带凸缘的塑件,可采用推块脱模机构,如图4-45所示。显然,图4-45(a)可看作推件板脱模机构的变异形式。推块与塑件的接触面积大,应有较高的硬度和较低的表面粗糙度,推块与型腔板之间的配合间隙以不溢料为准,并要运动灵活。

图4-45 推块脱模机构

4.4.2.5 气动脱模机构

指通过装在模具内的气阀把压缩空气引入塑件与模具之间使塑件脱模的一种装置。它特别适用于深腔薄壁类塑件的脱模,如图4-46所示。

图4-46 中心阀气动脱模

1—弹簧 2—气动推杆 3—型芯

4.4.2.6 联合脱模机构

对于深腔壳体、薄壁、有局部管状、凸筋、凸台及带金属嵌件的复杂塑件,多采用两种或两种以上的简单脱模机构联合推顶,以防止塑件的脱模变形。根据塑件的不同形状多采用推杆推管并用、推杆推件板并用和推管推件板并用等形式。图4-47为中心推杆与推板联合顶出结构。图4-48为推件板推管联合顶出结构。

图4-47 中心推杆与推板联合顶出结构

1—动模板 2—型芯 3—推件板 4—推杆

图4-48 推件板推管联合顶出结构

1—推件板 2—型芯 3—小型芯 4—推管 5—导柱

4.4.2.7 螺旋顶出机构

对于成型斜齿轮及类似斜纹塑件的模具,塑件和成型零件之间必须有旋转运动才能顺利将制品顶出。如图4-49所示。顶出时,推杆1推动轴承2和型芯3,并推动制品(斜齿轮),此时型芯3及制品沿螺旋方向转动,同时制品沿螺旋方向被顶出。

图4-49 推杆顶出斜齿轮结构

1—推杆 2—滚珠轴承 3—型芯 4—齿轮凹模 5—定模 6—浇口套 7—动模

图4-50是螺旋顶出的又一种结构形式。顶出时,由于导销3的作用,螺旋推杆2沿螺旋槽方向转动,并通过止动销4使制品斜齿轮随之转动,制品沿螺旋方向被顶出。

图4-50 螺旋推杆顶出斜齿轮机构

1—滚珠 2—螺旋推杆 3—导销 4—止动销 5—齿轮凹模 6—限位螺钉 7—型芯

随便看

 

文网收录3541549条中英文词条,其功能与新华字典、现代汉语词典、牛津高阶英汉词典等各类中英文词典类似,基本涵盖了全部常用中英文字词句的读音、释义及用法,是语言学习和写作的有利工具。

 

Copyright © 2004-2024 Ctoth.com All Rights Reserved
京ICP备2021023879号 更新时间:2025/10/17 10:02:47