网站首页  词典首页

请输入您要查询的字词:

 

字词 苇片除尘设备
类别 中英文字词句释义及详细解析
释义

苇片除尘设备


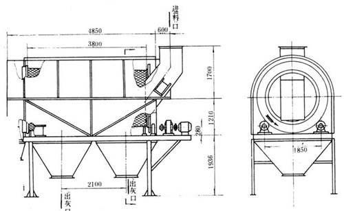
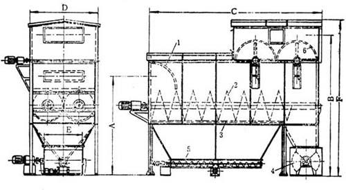
图6-2-29 旋风除尘器结构示意图

切断后的苇片用鼓风机送入旋风除尘器,初步除去苇膜、苇末和尘埃等,然后再进入圆筛除去泥砂和料末。对苇穗、苇花、碎末等轻杂质可用风选机去除。

图6-2-30 水膜除尘器结构示意图

1.旋风分离器

(1)工作原理

苇片经风机后沿切线方向吹入旋风分离器内,呈轴向旋转运动,苇片等重质物料受惯性速度作用,趋向旋风除尘器内壁,经碰撞动能减少,依其重力沿壁落下排出。而较轻的灰尘苇末等流入旋涡中心经内中心圆管随空气排出,使苇片得以净化。

(2)特点

①旋风分离器内中心圆筒管径越小处理的空气速度越大,则分离速度越大,分离较细小尘埃效率越高。

②旋风分离器可分为高型和低型两种。高型旋风分离器的高度与直径比大于2。由于旋风的圆柱形筒高,直径小,灰尘在筒内停留时间较长,有利于细小尘埃分离。适用于空气净化。低型旋风分离器的高度与直径比小于2。旋风的圆柱筒短,直径粗,适用于从空气中沉降出悬浮的粗大尘埃杂质。

(3)旋风分离器的型式

圆柱型:是指旋风的圆柱部分的高度和圆锥部分的高度比大于1的旋风分离器,主要适用苇片除尘使用。

圆锥型:是指旋风的圆柱部分的高度和圆锥部分的高度比小于1的旋风分离器。

(4)旋风分离器的效果

除尘效果较好的旋风分离器,一般圆筒部高度与下锥体高度之比近于1,圆柱筒的直径与筒内中央导管的直径之比近于2。为减少草片损失,可采取加大中心管空气排出管直径,降低出口风速或增长中心管伸入圆筒内的长度。

(5)旋风分离器的结构

结构简单,对苇膜尘土去除效果较好。其出口空气中带出的苇尘,应再采用水膜除尘净化处理,以减轻空气污染,保护环境卫生。

(6)旋风分离器的缺点

旋风分离器输送管道易磨损,风送动力消耗大。

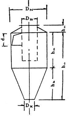
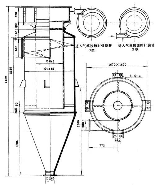
(7)旋风分离器尺寸

(8)技术特征

苇片除尘用旋风分离器技术特征见表6-2-21。

表6-2-21 旋风分离器的技术特征

(9)几种旋风分离器应用实例

图6-2-31 旋风分离器尺寸

表6-2-22 旋风分离器的应用实例

2.圆筛

(1)分类

圆筛是苇片筛选除尘的主要设备。按传动方式分有回转形和固定形,按筛的形状分有锥形筛和圆筛。

锥形筛:苇片从小径一端进入筛内,随筛筒转动向大端移动推进排出。

圆筛:两端直径相同,安装时轴与地平呈7°倾角,苇片从较高一端进入圆筛内径的螺旋形导板使苇片均匀散开导出。

不转动圆筛:只有下半圆筛板,苇片进入圆筛或锥形筛后,靠中心轴上(或锥形转鼓上)呈螺旋形的搅拌叶片拨动苇片向前移动排出。

(2)筛板

圆筛的筛板可选用不同规格,前段可采用长15mm,宽1.5mm的长筛孔。后段可采用直径3mm的圆筛孔。

表6-2-23 苇片圆筛筛板筛孔的技术特征

长孔筛板的筛孔面积大于圆孔筛板。圆孔筛孔易堵塞,其磨损较长孔筛缝大。在相同时间,相同条件下,长孔筛缝由1.5×1.5mm磨损到15×2.5mm时,圆孔筛孔直径由3mm可磨损到7mm。因此.长孔筛缝较圆孔筛孔使用耐久.筛孔有效而积大,除尘效率高。

图6-2-32 ZCS1圆筒筛片机

(3)主要技术特征

圆筛可筛选除掉大部分泥块、草屑、苇末、碎短苇片等,但对苇膜除去效果差。

圆筛结构简单,制造维修方便,动力消耗低,除尘效率高,使用较普遍。

图6-2-33 ZCS2圆筒筛片机

表6-2-24 苇片圆筛主要技术特征

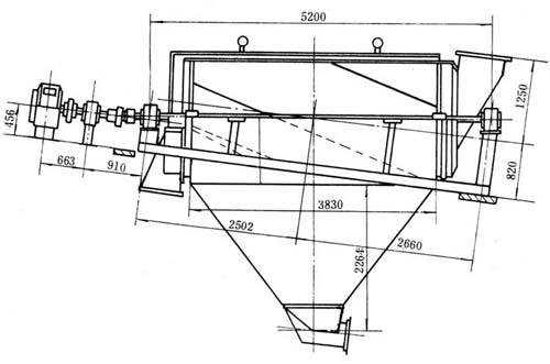
3.风选机

风选机主要用以去除苇膜、苇穗和苇末。是应用较广的一种苇片除尘设备。

(1)主要结构

风选机主要由螺旋输送器、插板、唇板、风扇、山背等部分组成。一台风送机有2~3个风选组。

(2)除尘原理

①利用苇末、苇膜、苇穗及尘埃等比重较小,经风扇吹起越过山背,进入集尘室。

②苇片等物料相对密度大,过不了山背,经打料板打散,使苇膜、苇末,苇尘等进一步分离风选除去。

(3)主要技术特征

图6-2-34 风送机

1-螺旋推进器

2-插板

3-唇板

4-风扇

5-打料板

6-山背

7-苇片溜斗

8-集尘室

9-隔网

10-回收苇鞘出口

11-尘埃吸出口

表6-2-25 风选机主要技术特征

以上风选机都处在正压状态下工作,风速、风量选择不甚适宜,所以除尘效率不高。

4.百叶式苇片除尘机

该机是利用苇片各组分相对密度、形状和受风面积的不同,而风速不同的原理,将苇叶、苇穗等与苇片分离开,达到除尘净化作用。

我国源江造纸厂从1979年投产以来,苇叶等杂质除尘效率达95%,而苇片损失约1%,效果较好。

图6-2-35 百叶式苇片除尘机

1-螺旋输送机 2-百叶 3-合格片 4-灰尘 5-苇片

表6-2-26 百叶式苇片除尘机技术特征

5.德国Nyblad公司的芦苇除尘设备

德国Nyblad公司专门制造草类原料备料设备,其中包括芦苇除尘设备。

图6-2-36是德国某厂的芦苇备料系统。该系统的全套设备为Nyblad公司所制造。

图6-2-36 德国某厂的芦苇备料系统

1-圆盘切苇机 2-苇片输送机 3-转刷除尘器 4-除铁器 5-密闭平筛除尘室 6-杂物集存斗 7-螺旋输送机 8-圆筛除尘机 9--次旋风分离器 10-除尘风管 11-杂物皮带运输机 12-集尘斗 13-苇片皮带输送机 14-苇皮吸送风机 15-二次旋风分离器

经圆盘切苇机切断的苇子由风机14抽吸进入转刷除尘器3,经过分离器后苇片通过转子喂料器落入除铁器4,然后经两台平筛进入圆筛除尘机,最后由皮带运输机13送往蒸煮。从转刷除尘器、平筛及圆筛除尘器排出的含尘空气由风机14吸出,经分离除尘器9及15分离后排出。全套设备的特点是全部采用密封连接,所以含尘空气基本上不流入车间,车间的卫生条件较为优越。

(1)转刷除尘器

转刷除尘器实际是除尘-料仓联合设备。被切断的苇子进入除尘器内,细小的尘土经过两个半圆形的网子逸出,而苇片则落下经出口处的转子喂料器定量地向下一工序供料。因此,除尘器起到了缓冲料仓作用,半圆形的网子随着使用周期的延长会被尘土堵塞,必须经常刷净。因此,每个网子都设有转刷,保证网眼清净,提高除尘效果。图6-2-37为Nyblad公司的转刷除尘器,其技术特征见表6-2-27。

图6-2-37 Nyblad公司的转刷除尘器

表6-2-27 转刷除尘器技术特征

(2)螺旋除尘器

螺旋除尘器用于除去比例较大的苇屑。苇片由风机吹入除尘器,被挡板1截下落到两根螺旋2上。螺旋的下面有筛板3,苇屑随着苇片在螺旋推进过程中通过网孔落下。苇片经料斗由转子喂料器4送到下一工序,而苇屑则落入下面的螺旋5,从两侧集中到中央排出。随苇片进入除尘器的空气则经半圆形网子6的网孔由风机吸出。为了防止网孔堵塞,每个网子也装有转刷,自动清扫网子。

螺旋除尘器和转刷除尘器不同之处在于它除了可以除去空气中的尘埃之外,还可以除去苇屑。HTSE型螺旋除尘器的外型结构见图6-2-38。

图6-2-38 HTSE型螺旋除尘器

1-挡板 2-螺旋 3-筛板 4-转子喂料器 5-出灰螺旋 6-半圆形网板

随便看

 

文网收录3541549条中英文词条,其功能与新华字典、现代汉语词典、牛津高阶英汉词典等各类中英文词典类似,基本涵盖了全部常用中英文字词句的读音、释义及用法,是语言学习和写作的有利工具。

 

Copyright © 2004-2024 Ctoth.com All Rights Reserved
京ICP备2021023879号 更新时间:2025/12/2 15:51:07