网站首页  词典首页

请输入您要查询的字词:

 

字词 高层建筑施工测量
类别 中英文字词句释义及详细解析
释义

高层建筑施工测量


1.高层建筑施工测量的特点

由于高层建筑的层数多、高度高、结构复杂、设备及装修标准高,特别是高速电梯的安装要求最高,因此,在施工过程中对建筑各部位的水平位置、垂直度及轴线位置尺寸、标高等的测设精度要求均十分严格。总体的建筑限差有严格的规定,对质量检测的允许偏差也有严格要求。如层间标高测量偏差和竖向测量偏差均要求不超过±3mm,建筑全高H测量偏差和竖向偏差不应超过3H/10000,且30m<H≤60m时,不应超过±10mm;60m<H≤90m时,不应超过±15mm;H>90m时,不应超过±20mm。

另外,由于高层建筑工程量大,且多设地下工程,分期施工,工期长,施工现场变化大,因而,为保证工程的整体性和局部性施工的精度,进行高层建筑施工测量之前,必须谨慎地制订测设方案,选用适当的仪器,并拟出各种控制和检测的措施以确保放样精度。

高层建筑一般用桩基础,主体结构为现浇框架结构工程,而且平面、立面造型新颖又复杂多变,因而,其测设方法与一般建筑既有相似之处,又有独特的地方。按测设方案实施时,务必精密计算,严格操作、校核,方可保证测设质量达到规定的建筑限差要求。

2.高层建筑施工测量的实施步骤

在高层建筑施工过程中有大量的施工测量工作,具体内容如下。

(1)施工控制网的布设

高层建筑施工必须建立施工控制网,其平面控制一般布设建筑方格网,建筑方格网较为实用、方便,精度可以保证,自检也方便。布设建筑方格网,需从整个施工过程考虑,以应用于打桩、挖土、浇筑基础垫层及其他施工工序中的轴线测设等施工活动中。由于打桩、挖土对控制网的影响较大,除了经常进行控制网点的复测校核之外,最好随着施工的进行,将控制网延伸到施工影响区之外。而且,需及时将控制轴线投测到相应的建筑面层上,这样便可根据投测的控制轴线,进行柱列轴线等细部放样,以用于绑扎钢筋、立模板和浇筑混凝土。为了将高层建筑的空间位置测设到实地,同时为了简化设计点位的坐标计算,便于在现场进行细部放样,布设的控制网轴线应严格平行于建筑物的主轴线或道路的中心线,且必须与建筑总平面图相配合,以便在施工过程中能够保存最多数量的方格控制点。

建筑方格网的实施流程,与一般建筑场地上控制网的实施过程一样,首先在建筑总平面图上设计,然后依据高等级测图点将其测设到现场,最后进行校核调整,以确保精度。

高层建筑施工中,高程的测设工作量在整个测量工作中占的比例很大,且是施工测量中的重要部分。正确而周密地在现场布置好水准高程控制点,能在很大程度上使立面布置、管道敷设和建筑施工得以顺利进行。施工场地上的高程控制需达到施工的质量要求,其高程控制点必须与国家水准点或城市水准点联测,场区的外部水准点高程系应与城市水准点的高程系统一,因为要由城市向建筑场区敷设许多管道和电缆等。

一般施工场区的高程控制用三、四等水准测量方法进行施测,且应把建筑方格网的方格点纳入到高程系中,以保证高程控制点密度,满足工程建设高程测设工作所需。所建网型为附合水准或闭合水准。

(2)高层建(构)筑物主要轴线的定位和放线

软土地基区的高层建筑的基础常用桩基,桩基础的作用在于将上部建筑结构的荷载传递到深处承载力较大的持力层中,分为预制桩和灌注桩两种,一般采用钢管桩或钢筋混凝土方桩。高层建筑基础的特点是:基坑较深,且位于市区,施工场地不宽畅;建筑定位大都是根据建筑方格网或建筑红线进行。由于高层建筑的上部荷载主要由桩承受,所以对桩位的定位精度要求较高,一般规定,根据建筑物主轴线测设桩基和板桩轴线位置的允许偏差为20mm,对单排桩则为10mm。沿轴线测设桩位时,纵向(沿轴线方向)偏差不宜大于3cm,横向偏差不宜大于2cm。位于群桩外周边上的桩,测设偏差不得大于桩径或桩边长(方形桩)的1/10;桩群中间的桩不大于桩径或边长的1/5。故在定桩位时须依据建筑施工控制网,先定出控制轴线,再按设计的桩位图标示尺寸逐一定出桩位,实地控制轴线测设好后,务必进行校核,检查无误后,方可进行桩位的测设工作。

施工控制网一般都确定一条或两条主轴线。因此,在建筑物放样时,按照建筑物柱列线或轮廓线与主控制轴线的关系,依据场地上的控制轴线逐一定出建筑物的轮廓线。对于目前一些几何图形复杂的建筑物,可以使用全站仪进行建筑物的定位。具体做法是:通过图纸将设计要素如轮廓坐标、曲线半径、圆心坐标及施工控制网点的坐标等识读清楚,并计算各自的测设要素,然后在控制点上安置全站仪建立测站,按极坐标法完成各点的实地测设。将所有建筑物轮廓点定出后,再行检查是否满足设计要求。

总之,根据施工场地的具体条件和建筑物几何图形的繁简情况,可以选择最合适的方法完成高层建筑物的轴线定位。

轴线定位之后,即可依据轴线来测设各桩位或柱列轴线上的桩位。桩的排列随着建筑物形状、基础结构的不同而异。最简单的排列是格网形状,此时只要根据轴线,精确地测设出格网的4个角点,进行加密即可测设出其他各桩位。有的基础则是由若干个承台和基础梁连接而成。承台下面是群桩,基础梁下面有的是单排桩,有的是双排桩,承台下的群桩的排列,有时也会不同。测设时一般是按照“先整体、后局部,先外廓、后内部”的顺序进行。

测设出的桩位均用小木桩标示其位置,且应在木桩上用中心钉标示桩的中心位置,以供校核。其校核方法一般是:根据轴线,重新在桩顶上测设出桩的设计位置,并用油漆标明,然后量出桩中心与设计位置的纵、横向两个偏差分量δx,.δy。若其偏差值在允许范围内,即可进行下一工序的施工。

桩的平面位置测设好后,即可进行桩的灌注施工,此时需进行桩的灌入深度的测设。一般是根据施工场地上已测设的±0.000标高,测定桩位的地面标高,依据桩顶设计标高、设计桩长,计算出各桩应灌入的深度,进行测设。同时可用经纬仪控制桩的铅垂度。

(3)高层建筑物的轴线投测

当完成建筑物的基础工程后,为保证在后期各层的施工中其相应轴线能处于同一竖直面内,应进行建筑物各轴线的投测。进行轴线投测前,为保证投测精度,首先需向基础平面引测各轴线控制点。因为,在采用流水作业法施工中,当第一层柱子施工好后,马上开始围护墙的砌筑,这样原有建立的轴线控制标桩与基础之间的通视即被阻断。因而,为了轴线投测的需要,必须在基础面上直接标定出各轴线标志。

当施工场地比较宽阔时,可采用经纬仪引桩投测法(又称外控法)进行轴线的投测。按此方法分别在建筑物纵轴、横轴线控制桩(或轴线引桩)上安置经纬仪(或全站仪),就可将建筑物的主轴线点投测到同一层楼面上,各轴线投测点的连线就是该层楼面上的主轴线,据此再依据该楼层的平面图中的尺寸测设出层面上的其他轴线。最后进行检测,确保投测精度。

当在建筑物密集的建筑区,施工场地狭小,无法在建筑物轴线以外位置安置仪器时,多采用内控法。施测时必须先在建筑物基础面上测设室内轴线控制点,然后利用垂准线原理将各轴线点向建筑物上部各层进行投测,作为各层轴线测设的依据。

首先,在基础平面上利用地面上测设的轴线控制桩测设主轴线,然后选择适当位置测设出与建筑物主轴线平行的辅助轴线,并建立室内辅助轴线的控制点。室内轴线控制点的布置视建筑物的平面形状而定,对一般平面形状不复杂的建筑物,可布设成“L”形或矩形。内控点应设在角点的柱子附近,各控点连线与柱子设计轴线平行,间距约为0.5~0.8m,且应选择在能保持垂直通视(不受梁等构件的影响)和水平通视(不受柱子等影响)的位置。内控点的测设,应在基础工程完成后进行,先根据建筑物施工控制网点,校测建筑轴线控制桩的桩位,看其是否移位变动,若无变化,依据轴线控制桩点,将轴线内控点测设到基础平面上,并埋设标志。一般是预埋一块小铁皮,上面划十字丝,交点上冲一小孔,作为轴线投测的依据。为了将基础层上的轴线点投测到各层楼面上,在内控点的垂直方向上的各层楼面预留约300mm×300mm的传递孔(也叫垂准孔),并在孔周围用砂浆做成20mm高的防水斜坡,以防投点时施工用水通过此孔流落到下方的仪器上。其投测仪器现在为激光铅垂仪。

激光铅垂仪是一种供铅垂定位的专用仪器,适用于高层建筑、水塔、烟囱等工程施工中的铅直定位测量,主要进行铅垂线的轴线点位传递。仪器使用方便、铅垂定位精度高、速度快。仪器上装有上、下两只半导体激光器,可用来上、下对点进行点位传递。其中,下激光器利用下对点系统用激光束对准底面基准点,快速直观,然后利用上激光器通过上垂准望远镜发射激光以向上投点,完成点位的向上传递(也可以向下投点完成轴线点的向下传递)。如图10-47所示,投测时,安置仪器于测站点(底层轴线内控点上),进行对中、整平,在对中时,打开对点激光开关,使激光束聚焦在测站基准点上;然后调整三脚架的高度,使圆水准气泡居中,以完成仪器对中操作;再利用脚螺旋调置水准管,使其在任何方向都居中,以完成仪器的整平;最终进行检查以确认仪器严格对中、整平,此时可将对点激光器关闭。同时在上层传递孔处放置网格激光靶,对其照准,打开垂准激光开关,会有一束激光从望远镜物镜中射出,并聚焦在靶上,激光光斑中心处的读数即为投测的监测值。这样即将基础底层内控点的位置投测到上层楼面,然后依据内控点与轴线点的间距,在楼层面上测设出轴线点,并将各轴线点依次相连即为建筑物主轴线,再根据主轴线在楼面上测设其他轴线,完成轴线的传递工作。按同法逐层上传,但应注意,轴线投测时,要控制并检校轴线向上投测的竖直偏差值在本层内不得超过±5mm,整栋楼的累积偏差不超过±20mm。同时还应用钢尺精确测量投测的轴线点之间的距离,并与设计的轴线间距相比较,其相对误差对高层建筑而言不得低于1/10000。否则,必须重新投测,直至达到精度要求。图10-47(a)、图10-47(b)为向上投点,图10-47(c)为向下投点。

图10-47 内控法轴线投测

(a)、(b)向上投点;(c)向下投点

(4)高层建筑物的高程传递

高层建筑施工中,要由下层楼面向上层传递高程,以使上层楼板、门窗、室内装修等工程的标高符合设计要求,楼面标高误差不得超过±10mm。传递高程的方法有以下几种。

1)利用皮数杆传递高程

皮数杆上自±0.000标高线起,门窗、楼板、过梁等构件的标高都已标明。一层楼砌筑好后,则可从一层皮数杆一层一层往上接,这样就可以把标高传递到各楼层。在接杆时要注意检查下层杆位置是否正确。

2)利用钢尺直接测量

若标高精度要求较高,可用钢尺沿某一墙角自±0.000标高处起直接测量,把高程传递上去。然后根据下面传递上来的高程立皮数杆,作为该层墙身砌筑和安装门窗、过梁及室内装修、地坪抹灰时控制标高的依据。

3)悬吊钢尺法(水准仪高程传递法)

根据高层建筑物的具体情况也可用水准仪高程传递法进行高程传递,不过此时需用钢尺代替水准尺作为数据读取的工具,从下向上传递高程。如图10-48所示,由地面已知高程点A向建筑物楼面B传递高程,先从楼面上(或楼梯间)悬挂一支钢尺,钢尺下端挂重锤。监测时,为了使钢尺稳定,可将重锤浸于一盛满油的容器中,然后在地面及楼面上各安置一台水准仪,按水准测量方法同时读取a1,b1及a2读数,则可计算出楼面B上设计标高为HB的测设数据b2=HA+a1-b1+a2-HB,据此可按照测设已知高程的测设方法测设出楼面B的标高位置。

图10-48 水准仪高程传递法

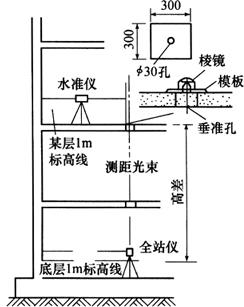
4)全站仪天顶测高法

如图10-49所示,利用高层建筑中的传递孔(或电梯井等)在底层高程控制点上安置全站仪,置平望远镜(显示屏上显示垂直角为0°或天顶距为90°),然后将望远镜指向天顶方向(天顶距为0°或垂直角为90°),在需要传递高程的层面传递孔上安置反射棱镜,即可测得仪器横轴至棱镜横轴的垂直距离。将该垂直距离加仪器高,减棱镜常数(棱镜面至棱镜横轴的间距),就可以算得两层面间的高差,据此即可计算出测量层面的标高,最后与设计标高相比较,进行调整即可。

图10-49 全站仪测距法传递高程

随便看

 

文网收录3541549条中英文词条,其功能与新华字典、现代汉语词典、牛津高阶英汉词典等各类中英文词典类似,基本涵盖了全部常用中英文字词句的读音、释义及用法,是语言学习和写作的有利工具。

 

Copyright © 2004-2024 Ctoth.com All Rights Reserved
京ICP备2021023879号 更新时间:2025/10/17 21:57:01