| 释义 |
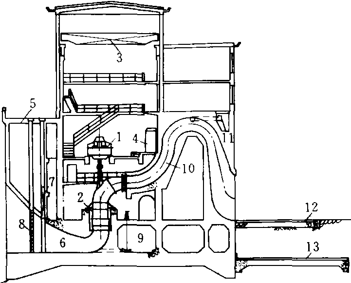
块基型泵房pumping house with block foundation
块基型泵房 1.电动机 2. 主水泵 3. 桥式吊车 4. 高压开关柜 5. 工作桥 6. 肘形进水流道 7. 检修闸门 8. 拦污栅 9. 排水廊道 10. 虹吸出水流道 11. 真空破坏阀 12. 防冲护坦 13. 防渗板 用钢筋混凝土将水泵基础、泵房底板、进出水流道浇成一个整体的泵房。适宜安装口径大于1 200 mm的大泵。层数随泵轴装置的不同而异,安装立式泵(轴流泵、混流泵、离心泵)的泵房为四层,从上向下分别为电机层、联轴层、水泵层、进水流道层;安装卧式泵(轴流泵、混流泵和贯流泵)的泵房只有二层,上层为电机层,安装水泵机组、电器设备、辅助设备等,下层为进水流道层。这种泵房具有整体性较好、抗滑和抗浮稳定性好、对不均匀地基适应性好等优点。适用于扬程较高、上下水位差大于10 m,地基条件较好的地方。中国已在江苏、湖北、湖南等省沿江滨湖地区建成多座这种泵站,如江都抽水站等。 |