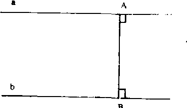
平行线间的距离 平行线间的距离pingxingxian jian de juli两条直线平行,从一条直线上的任一点向另一条直线引垂线,垂线段的长.两条平行线间的距离处处相等. ☚ 平行线的性质定理 两组边分别平行的角的性质 ☛ 平行线间的距离 平行线间的距离Pingxingxian jian de juli两条直线平行, 从一条直线上的任一点向另一条直线引垂线,垂线段的长,叫做这两条平行线间的距离。如图中线段AB是平行线a和b间的距离。两条平行线间的距离处处相等。 ☚ 点到直线的距离 同位角 ☛ 00004703 |