网站首页  词典首页

请输入您要查询的字词:

 

字词 泵站的设计、制造和安装
类别 中英文字词句释义及详细解析
释义 泵站的设计、制造和安装

·泵的容量不宜采用过多的裕量。以免能量损失太大,并且使油液发热太大。

·容量大的液压泵源,以采用多台泵并联供油为宜,尤其是在一个工作循环中大流量负荷所占时间较短的系统中。

·尽量采用蓄能器来改善泵输出功率的平滑性,减少输出压力的脉动值;减少泵和电机的装机容量。

·注意考虑选用恒压泵、恒功率泵、负荷传感泵、手动变量泵等对功率输出适应性较好,节能效果较好的变量泵。

·采用定量泵时,注意在泵出口处的溢流阀采用节能型溢流阀或远程卸荷阀。

·重要场合应用的泵站,应设置备用泵。

·液压泵的吸油管路必须尽量短而直,避免断面突变,以利于改善泵的自吸性能和降低噪声。吸油管路通径必须大于泵吸油口口径。

不应在吸油管路中设置精滤油器。如主泵的吸油口另有供油泵供油,则例外。

·在正常工作条件与温度条件下,由于泵的吸油管和出油管的热膨胀和机械振动干扰易引起泵与驱动电机不对正以及整个泵站与外部结构件的额外应力和振动。因此,当泵的排量≥6.3mL/r,工作压力≥8MPa的固定式泵站上,应做到:

——泵的吸油管上应设置弹性补偿装置。

——泵的出口管道和泄油管应采用高压软管。

——泵与驱动电机的底板应设置弹性减震垫。

·泵与驱动电动机(或其他原动机)之间,尽量采用挠性传动联轴节。其外露的旋转轴和联轴器必须设置保护装置。

泵的下面要设置接油盘。

应明显标出泵和电动机的旋转方向。

·泵支架,泵与电动机(或其它原动机)的底板,如果是铸件或焊结构件,在机械加工前(或精加工前)必须经过时效或退火处理。

·泵如果用直角架支撑,该支架底面与泵端面结合面之间的垂直度允差在8级以上。如支架是由两端分别与泵端面和电动机端面凸缘相连,支架两端与凸缘相配的止口孔径同轴度允差应在8级以上。两端面的平行度允差应在8级以上。

·直角支架安装时,泵支架的支口中心高,允许比电动机的中心高略高0~0.8mm,这样在安装时,调整泵与电动机的同轴度时,可只垫高电动机的底面。允许在电动机与底座的接触面之间垫入图样未规定的金属垫片(垫片数量不得超过3片,总厚度不大于0.8mm)。一旦调整好后,电动机一般不再拆动。必要时只拆动泵支架,而泵支架应有定位销定位。

安装时,泵、电动机、支架、底座各元件相互结合面上必须无锈,无凸出斑点和油漆层。在这些结合面上应涂一薄层防锈油。

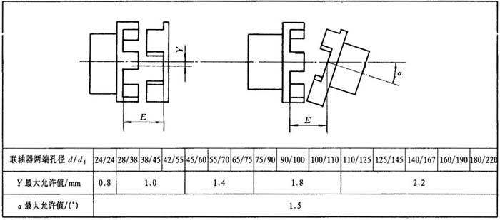
安装液压泵、支架和电动机时,泵与电动机两轴之间的同轴度允差,平行度允差应符合表38.4-1的规定。或者不大于泵与电动机之间联轴器制造商推荐的同轴度、平行度要求。

表38.4-1 泵和电动机轴的同轴度、平行度允差

调整完毕后,在泵支架与底板之间钻、铰定位销孔。再装入联轴器的弹性耦合件。然后用手转动联轴器,此时,电动机、泵和联轴器都应能轻松、平滑地转动,无异常声响。

随便看

 

文网收录3541549条中英文词条,其功能与新华字典、现代汉语词典、牛津高阶英汉词典等各类中英文词典类似,基本涵盖了全部常用中英文字词句的读音、释义及用法,是语言学习和写作的有利工具。

 

Copyright © 2004-2024 Ctoth.com All Rights Reserved
京ICP备2021023879号 更新时间:2026/4/18 16:48:55