1.切竹机
小杂竹的切片可用一般的刀辊切草机进行。
对脱青竹片或较大原竹片的切片,可选用刀辊切竹机或刀盘切竹机进行。
(1)主要技术特征及外形结构
表6-2-10 切竹机的技术特征

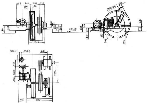
ZM×13型Φ2500五刀型刀盘式切竹机见图6-2-11。

图6-2-11 Φ2500五刀型刀盘式切竹机
ZCQ21三刀型刀辊式切竹机机可直接切Φ150mm以下的原竹及竹片,不必在切竹前再另设破竹设备或人工破竹,其外形结构见图6-2-12。

图6-2-12 ZCQ21型刀辊式切竹机
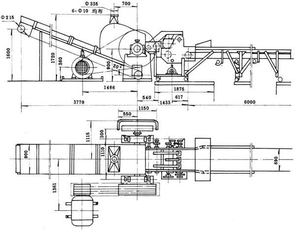
ZCQ22型刀辊式切竹机的结构较简单,由进料,喂料,切料、出料等部分组成,喂料部分的三只喂料上辊分别装在两支摆座内,随着料层厚度的变化,两只摆座围绕着中间轴摆动,保证了各喂料辊的传动中心距保持不变,避免爬链现象。靠近切断刀辊的一只喂料辊直径较小,可减少切料头,提高合格率。
该机在切断毛竹等大直径竹子时,可先经配套辅机ZCQ22Yz压竹机压溃。
ZCQ22Yz辊式压竹机的主要技术特征如下:
生产能力:3.5~4t/h;
压辊线速:30m/min;
外形尺寸:4310×870×1600mm;
电动机:y0160M-6,75kW1台;
配套减速机:ZD-20-5-1。
ZCQ22型切竹机的外形结构见图6-2-13。

图6-2-13 ZCQ22型刀辊式切竹机
(2)切竹机的设备管理与维修
①认真执行切竹机一、二级保养和中修、大修计划与制度。
切竹机一级保养每隔15~30天保养1次。二级保养每隔3~6个月保养1次。中修每隔12个月中修1次。大修每隔36个月大修1次。切竹机设备维修复杂系数为ZF=5。
②经常检查主要紧固螺栓、刀辊、刀盘、喂料辊传动等部位及安全设施。
③检查和清理传动各部轴承和油路,加足润滑油脂。
④检查维护电机和电器设备,保证性能良好、安全运行。
⑤定期更换飞刀、底刀、主轴、刀辊、刀盘以及轴承和严重损坏件。使切竹机整机性能完好,运转正常,安全可靠。
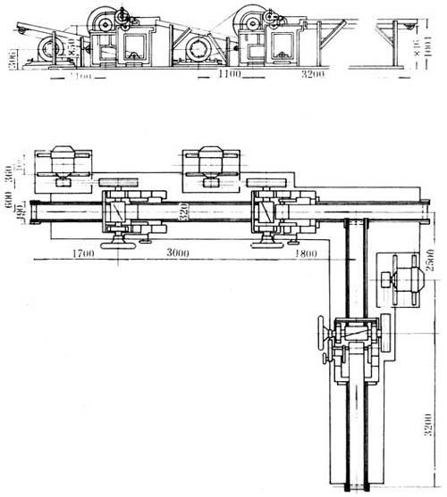
2.开竹机
将直径75~100mm的竹子剖成5~8片,再供给切竹机切片。
表6-2-11 开竹机的技术特征


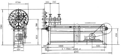
图6-2-14 开竹机
3.洗竹机
轻工业部武汉设计院为国外某厂设计了一种对原竹进行洗刷的洗竹机,其主要技术特征见表6-2-12,外形及主要安装尺寸见图6-2-15。

图6-2-15 洗竹机
表6-2-12 洗竹机的技术特征

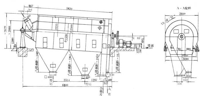
4.双层圆筒式竹片筛
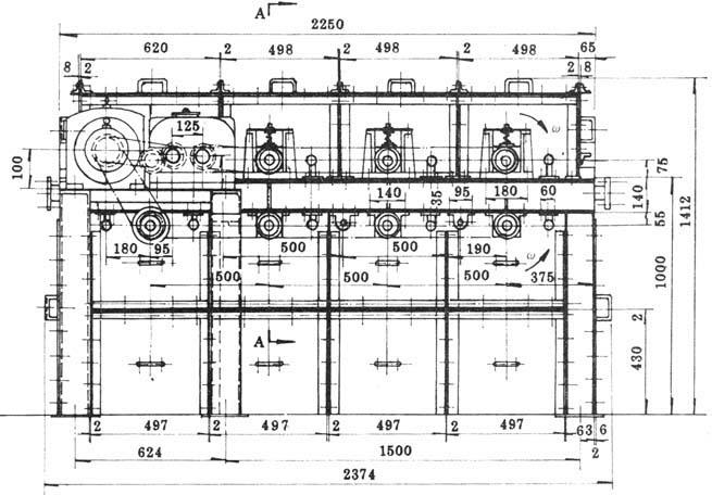
该机是刀辊切竹机的配套筛选设备(也有的厂不进行筛选,直接送蒸煮使用)。双层圆筒式竹片筛的技术特征见表6-2-13,其外形见图6-2-16。
表6-2-13 双层圆筒式竹片筛技术特征


图6-2-16 双层圆筒式竹片筛

图6-2-17 ZCQ31三刀刀辊切布机