网站首页  词典首页

请输入您要查询的字词:

 

字词 高压断路器操作机构
类别 中英文字词句释义及详细解析
释义

高压断路器操作机构


高压断路器操作机构是供操作高压断路器、负荷开关及隔离开关使用的电气设备。

操作机构型号及含义如下:

35kV及以下断路器的操作机构常用的有手力操作机构、直流电磁操作机构和交直流电动机驱动弹簧储能操作机构。

手动操作机构编入了少油断路器配用的CS1、CS2、CS15型。电磁操作机构中的CD10型是在原CD2型的基础上改进了设计,增大了合闸能力的,目前已与SN10-10系列断路器在许多高压开关柜内配套使用。弹簧储能操作机构中的CTA、CT8型为近年来新设计的产品,较老产品有了改进,其中CT8型已由许多厂生产并在高压开关柜内配套。

35kV及以下的负荷开关和隔离开关的操作机构目前仍以手力操作机构为主。

除上述各类操作机构外,尚有气动式、电动机操作式等。

1.CS1、CS2手动操作机构

小型发电站和变电所中常用操动机构的型号有CS1和CS2,其外形见图5-2和图5-3。

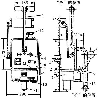
图5-2 CS1型操动机构

图5-3 CS2型操动机构

1.手柄 2.底盒 3.到开关的拉杆 4.固定螺钉 5.接地螺钉 6.指示极 7.继电器铸铁盒 8.辅助开关 9.扣住失压脱扣器的按钮 10.瞬时过载脱扣器 11.失压脱扣器 12.故障信号开关 13.导线孔

CS1、CS2型手动操作机构供SN10、SN1、SN2型高压断路器及人工接地刀用(技术数据见表5-7,表5-8)。用手柄转动机构的连杆使断路器合闸,由于机构中具有自由脱扣机构,故能在合闸过程中的任何位置用手动或装在机构内的脱扣附件使断路器分闸。该机构装于箱内,可用于户外。

表5-7 CS2型操动脱扣保护使用种类

表5-8 CS2型操作机构脱扣器技术数据

CS1、CS2型手动操作机构的使用种类是由其脱扣附件数量和型式的不同来区别的,每台操作机构中附件的数量最多不超过三种。该操作机构有四种脱扣器:

瞬时过载脱扣器——过载及短路保护用。

延时过载脱扣器——过载及短路保护用。

失压脱扣器——当网路电压降落时保护用。

切断电磁铁——用于其他需要的联锁操作或保护(由各种电源通过带有闭合触头的继电器来操作)。

2.CD10型直流电磁操动机构

CD10型直流电磁操动机构是户内悬挂式,用于控制SN10-10型户内高压少油断路器。CD10型属改进型产品,比CD2型机构增大了合闸能力。该机构可以电动合闸、电动分闸和手动分闸,也可进行自动重合闸。分闸需要使用直流电源,控制合闸直流电源可用外接的CZO-40C、CZO-40D型低压直流接触器。机构内装有分闸电磁铁,既能手力分闸也能电动分闸或遥控分闸。

CD10型直流电磁操动机构的技术数据见表5-9。CD10型直流电磁操动机构分合闸线圈技术数据见表5-10。

表5-9 CD10型电磁操动机构技术数据

表5-10 CD10型操动机构分合闸线圈技术数据

3.CT8型弹簧储能操动机构

CT8型弹簧储能操动机构是户内型,用于操动SN10-10(Ⅰ)、(Ⅱ)型高压少油断路器,或合闸功率与其相当的其他断路器。合闸弹簧的储能方式有电动机储能和手力储能两种。机构的合闸操作具有手动合闸和电动(电磁铁)合闸两种方式。分闸操作除有手动分闸外电动脱扣器有分闸电磁铁(分励脱扣器)、瞬时过电流脱扣器、失压脱扣器。

CT8型弹簧储能操动机构电动脱扣组合代号见表5-11。

表5-11 CT8型弹簧储能操动机构电动脱扣组合代号

CT8型弹簧储能操动机构储能电动机数据见表5-12。

表5-12 CT8型操动机构储能电动机数据

CI8型弹簧储能操动机构合分闸电磁铁数据见表5-13。

表5-13 CT8型操动机构合、分闸电磁铁数据

随便看

 

文网收录3541549条中英文词条,其功能与新华字典、现代汉语词典、牛津高阶英汉词典等各类中英文词典类似,基本涵盖了全部常用中英文字词句的读音、释义及用法,是语言学习和写作的有利工具。

 

Copyright © 2004-2024 Ctoth.com All Rights Reserved
京ICP备2021023879号 更新时间:2025/10/18 20:47:45