网站首页  词典首页

请输入您要查询的字词:

 

字词 小型断路器
类别 中英文字词句释义及详细解析
释义

小型断路器


1.适用范围

小型断路器适用于交流50Hz或60Hz,额定电压不超过440V(相间),额定电流不超过125A,作为线路过载与短路保护之用,亦适用于线路不频繁操作及隔离之用。可广泛用于工矿企业、高层建筑业、商业和民宅等配电系统中作为照明、电动机回路和电源设备等的保护。

和小型断路器拼装的带剩余动作电流保护的断路器(也称漏电断路器)或不带过载保护的剩余动作电流保护器(也称漏电保护器)适用于交流不超过440V的电路中,作为对地漏电保护之用,防止人身触电和设备漏电的保护。

2.结构特征

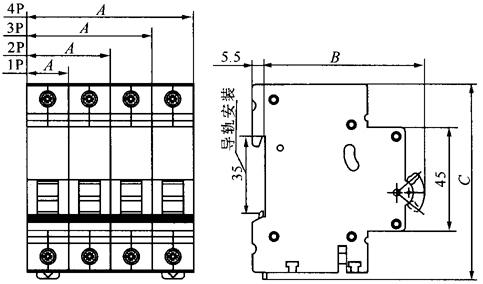
小型断路器都为模数化结构,1个模数为9mm,1极一般为2个模数,即18mm,依次类推。安装方式一般为导轨安装,产品体积小,安装方便。

漏电断路器和漏电保护器可分两种类型,即电子式和电磁式,由于设计原理的不同,电磁式比电子式的保护范围更广、更安全。

漏电断路器是由小型断路器与漏电附加器拼装在一起的,所以体积较大,1极的宽度达54mm,但可以拼装多极。漏电保护器为整体式,体积小,并只有2极和4极,2极的宽度为36mm,4极的宽度为72mm。

3.常用产品型号和主要技术参数

常用产品型号和主要技术参数见表1-54和图1-32。

表1-54 常用产品型号和主要技术参数

注:CD7系列为德力西公司开发的小型断路器,CDB7系列可增加欠电压脱扣器、分励脱扣器、辅助触头等,同时可派生模数化指示灯,交直流小型断路器和18mm宽中带1P+N的小型断路器,CDB7LE为电子式漏电断路器,CDL7为电磁式漏电保护器

注:N系列为正泰公司开发的小型断路器,NB1系列小型断路器可增加欠电压脱扣器、分励脱扣器、辅助触头等。NB1L为电子式漏电断路器,NL1为电子式漏电保护器

注:C65系列是Schneider施耐德公司的产品型号,原C45已不生产,但市场上的型号为DZ47的产品与C45相同。C65系列产品的特点是分断能力、冲击电压、电压保护、速闭合等主要技术参数都比C45有明显提高,同时也增加了产品品种,以满足不同用户的需求。C65具有隔离功能,也可用于直流系统;VigiC65漏电保护具有独立的复位手柄和故障指示,有电磁式和电子式两种,容易安装

S200系列小型断路器和F系列、DS系列漏电断路器都为ABB公司生产的产品,S200系列小型断路器每极都可用挂锁及相应附件锁定在闭合或分断位置,可装分励脱扣器,也可装信号触头和辅助触头。F系列不带过电流保护,为整体式,采用了零序电流互感器和电磁式漏电脱扣器、灵敏度相当高,发生接地故障电流时,能迅速断开电路,保护人身不受电击,设备不受火灾危害。DS系列为电磁式漏电断路器,带过载保护,但只有1P+N

5S为德国西门子公司的产品型号,5S系列采用了漏斗式组合型接线端子使接线简单可靠;触头系统采用银合金材料(银锡或银石墨),真正做到了无熔焊。5SM采用漏斗式组合型接线端子使接线简单可靠;并可在下接线端子连接汇流母线排。5SU除具有漏电保护功能外还具有短路及过载保护功能,并且具有很强的限流能力

MC、MD、NM小型断路器为海格公司生产产品,亦可用于直流。U系列为漏电保护器,只有漏电保护功能,不具有过载和短路功能,A系列为漏电保护组合器,可以单独对漏电故障进行保护,为电磁式结构。BD型为漏电附加器代号,只有与小型断路器MC或MD拼装在一起才能达到漏电保护作用

注:L7系列为德国F&G和金钟-默勒公司联合生产的产品,L7系列采用模数化设计,附件完备,具有辅助触头,报警指示触头,分励脱扣器,欠压脱扣器。其设计灵敏,灭弧能力强,因而限流能力强

注:BH系列小型断路器是日本三菱电机生产的,可适用于直流125V的电路,亦可供照明线路及日常生活用电气设备进行不频繁通断操作及电源隔离之用,BH为螺丝接线,BH-P为插入式,BH-SM3指分断能力为3kA,M6为6kA,M9为9kA;NV系列漏电断路器外形及安装尺寸与塑壳NF相同,分断能力有C经济型、S标准型和H高分断型

注:E、G、H系列小型断路器是GE电控集团公司新近为外销欧洲市场而开发的,主要用于照明,动力配电系统作线路的过载及短路保护以及不频繁转换用。E为经济型,G为标准型,H为高分断型

注:E4CB、E4EB、E4EL系列断路器是澳大利亚奇胜电器公司在原有的基础上,与美国通用电气配电与控制系统有限公司合作,开发的新系列开关电器,在功能、质量等方面又向前迈了一大步。小型断路器E4CB用于照明、动力配电系统线路的过载及短路保护,以及线路的不频繁转换之用。E4EB/M、E4EL系列漏电断路器具有很高的动作灵敏度,能防止人体直接接触相线的电击事故。

注:FAZ系列小型断路器是由沈阳213机床厂与德国金钟-默勒电器公司共同组建的沈阳金钟-宏特电器有限公司生产的产品。具有过载、短路两种保护功能,有体积小、分断能力高、安装方便、使用安全可靠的特点

图1-32 小型断路器外形及安装尺寸示意图

随便看

 

文网收录3541549条中英文词条,其功能与新华字典、现代汉语词典、牛津高阶英汉词典等各类中英文词典类似,基本涵盖了全部常用中英文字词句的读音、释义及用法,是语言学习和写作的有利工具。

 

Copyright © 2004-2024 Ctoth.com All Rights Reserved
京ICP备2021023879号 更新时间:2025/10/17 22:59:46